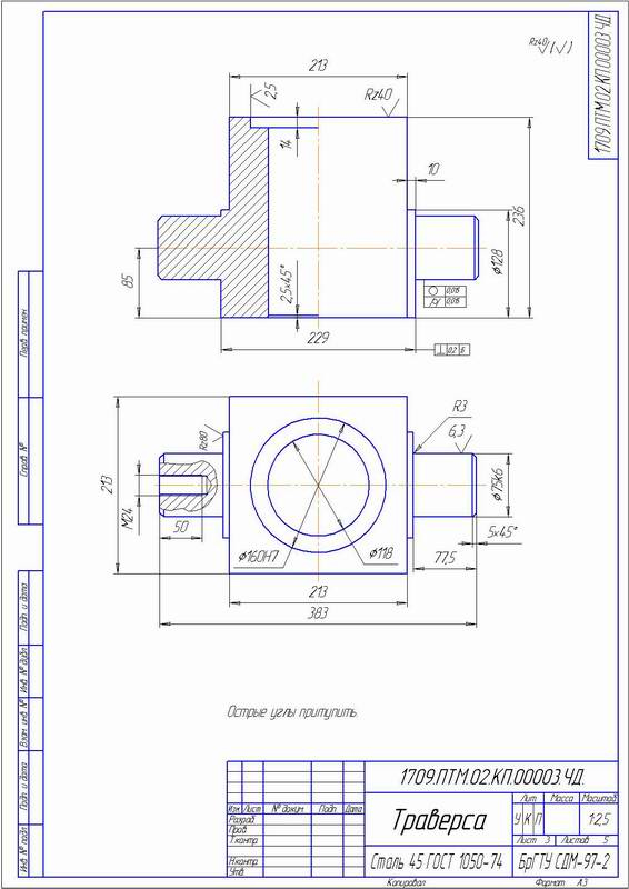
Траверса для крюковой подвески
Траверса крюковой подвески является её главной составной частью. Траверса закреплена между металлическими пластинами (щеками подвески ,крюковой обоймой).
На траверсе располагается грузовой крюк который удерживается посредством специальной гайки, гайка крюка опирается на траверсу через подшипник скольжения.
Подшипник необходим для свободного вращения крюка вокруг своей оси при максимальных нагрузках.
Траверса обычно изготавливается из заготовки ст.45 путем механической обработки.
Траверсу для крюковой подвески обычно заказывают для замены при проведении ремонтных работ. Траверсу необходимо заменить если пошли трещины или пошла её деформация.
В нашей компании Вы можете заказать изготовление траверсы для любой крюковой подвески в соответствии с ОСТ или по индивидуальным чертежам.
Цена траверсы крюковой подвески зависит от её веса а так же требования и сложности предъявляемых чертежом , по этому цена на такие изделия всегда рассчитываются индивидуально.
Образец чертежа траверсы в соответствии с отраслевым стандартом РФ



